物件リクエスト

店舗付住宅
西区九条1丁目店舗付き戸建
new

ナインモール九条商店街内の店舗付き戸建♪
価格
1億6,500万円
共益費・管理費円
所在地 大阪府大阪市西区九条1丁目  西区九条1丁目店舗付き戸建 MAP
交通 大阪メトロ中央線 九条駅 徒歩2分
阪神なんば線 九条駅 徒歩4分
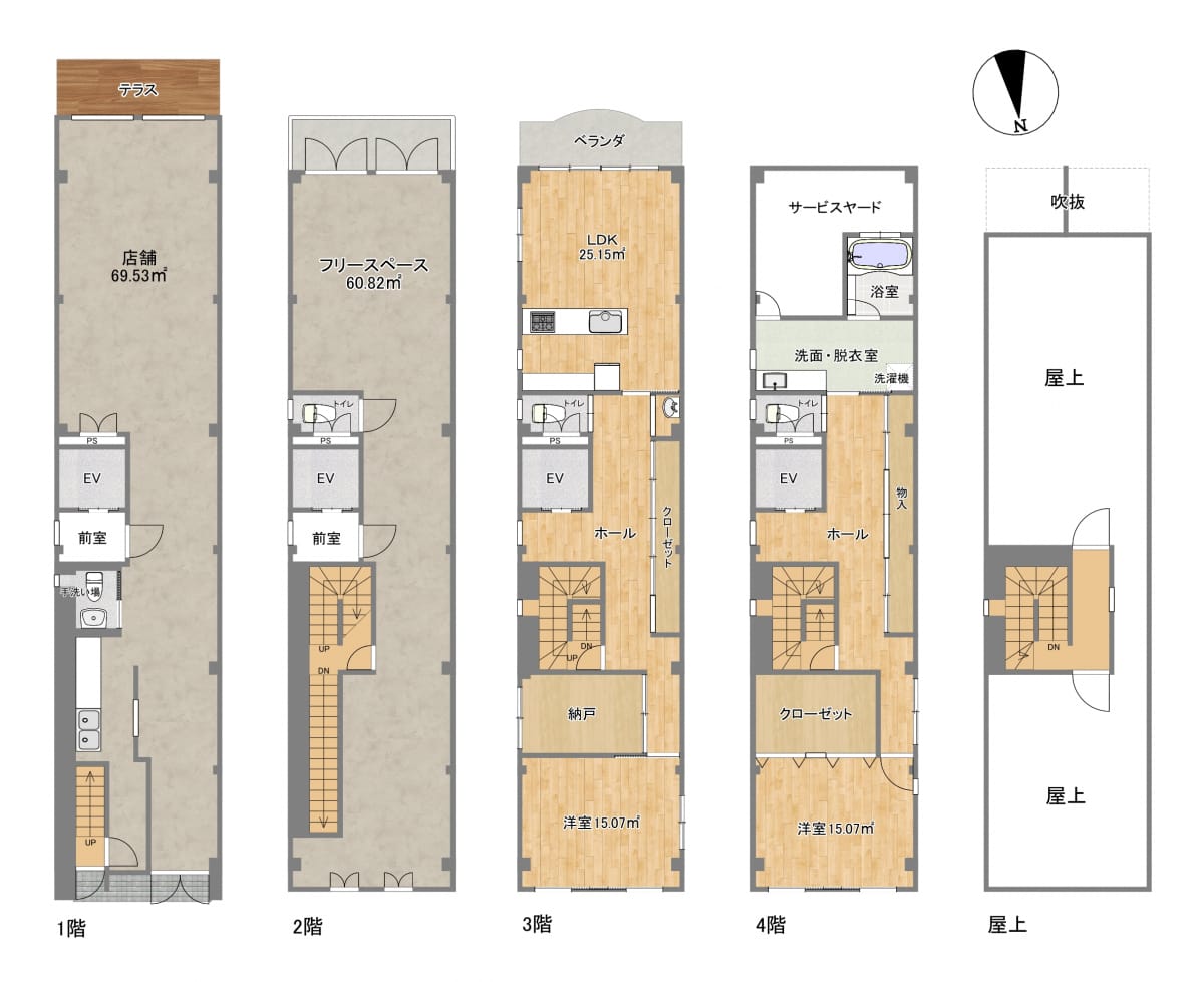
間取/専有面積
2SLDK/ 305.11m²
築年月
2011/12
階建
地上4階 
構造
鉄骨造
  • 間取りと現状が異なる場合、現状を優先とします(間取)
  • (外観)
  • 店舗部分(内装)
  • (内装)
  • ベランダ(内装)
  • 屋上(内装)
  • 間取りと現状が異なる場合、現状を優先とします(間取) (外観) 店舗部分(内装) (内装) ベランダ(内装) 屋上(内装)

    OUTLINE物件概要

    築年月 2011/12 新築/中古 中古
    面積 305.11m² 計測方式 内法
    バルコニー 向き
    建物階数 地上4階  部屋階数
    建物構造 鉄骨造
    間取内容 LDK25.15畳   洋室15.07畳   洋室15.07畳   S2室  
    駐車場 取引態様 一般
    引渡/入居時期 相談 現況 居住中
    地目 宅地 用途地域 商業
    都市計画 市街化区域 地勢 平坦
    土地面積 113.88m² 土地面積計測方式 公簿
    建ぺい率 80% 容積率 400%
    土地権利 所有権 接道状況 一方
    接道方向1 北東 接道間口1 11m
    接道種別1 公道 接道幅員1 4.7m
    設備・条件 システムキッチン 給湯 バス専用 トイレ専用 バス・トイレ別 温水洗浄便座 室内洗濯機置き場 都市ガス 公営水道 排水下水 エレベータ
    物件番号 2025121202
    自社物 自社物 状態 売出中
    特記事項 ・商店街費用有り(詳細調査中)
    ・エレベーター管理費:3,850円/月(税込)
    ※物件掲載内容と現況に相違がある場合は現況を優先と致します。

    OUTLINE物件概要

    築年月 2011/12
    新築/中古 中古
    面積 305.11m²
    計測方式 内法
    バルコニー
    向き
    建物階数 地上4階 
    部屋階数
    建物構造 鉄骨造
    間取内容 LDK25.15畳   洋室15.07畳   洋室15.07畳   S2室  
    駐車場
    取引態様 一般
    引渡/入居時期 相談
    現況 居住中
    地目 宅地
    用途地域 商業
    都市計画 市街化区域
    地勢 平坦
    土地面積 113.88m²
    土地面積計測方式 公簿
    建ぺい率 80%
    容積率 400%
    土地権利 所有権
    接道状況 一方
    接道方向1 北東
    接道間口1 11m
    接道種別1 公道
    接道幅員1 4.7m
    設備・条件 システムキッチン 給湯 バス専用 トイレ専用 バス・トイレ別 温水洗浄便座 室内洗濯機置き場 都市ガス 公営水道 排水下水 エレベータ
    物件番号 2025121202
    自社物 自社物
    状態 売出中
    特記事項 ・商店街費用有り(詳細調査中)
    ・エレベーター管理費:3,850円/月(税込)
    ※物件掲載内容と現況に相違がある場合は現況を優先と致します。

    CONTACTこの物件にお問い合わせ

    必須物件名
    必須お名前
    必須メールアドレス
    任意お電話番号(携帯可)
    必須ご希望の連絡方法 メールまで電話まで特になし
    任意詳しいご要望などあれば

    Fudousan Plugin Ver.5.3.2